联系电话:
400-888-6908
2021-03-23
在人类文化的历史长河中,酒作为一种客观物质存在着,但它更多的是一种文化象征。“川酒甲天下,精华在宜宾”,宜宾产区拥有堪称绝佳的酿酒生态,独特的气候、土壤、水源“三位一体”的自然条件,特别适合白酒酿造微生物菌群生长,为高品质白酒酿造提供了得天独厚、不可复制的生态环境。本期的经典项目定位在了“万里长江第一城”宜宾市六尺巷酒业产业园。

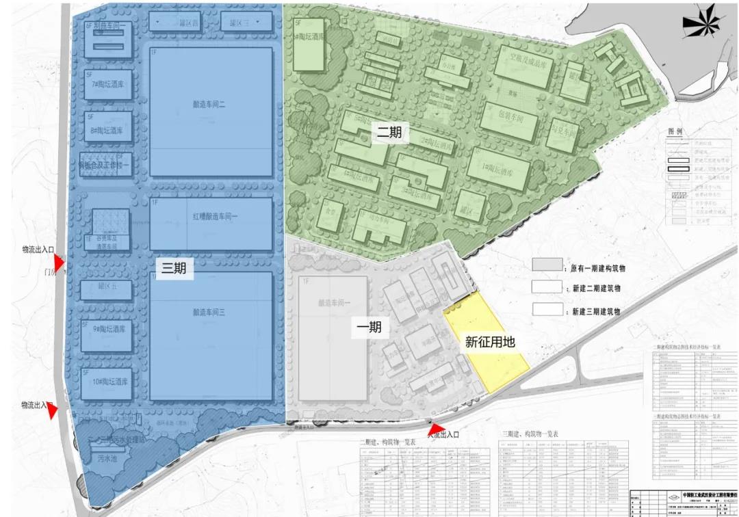
宜宾六尺巷酒业有限公司是中国浓香型白酒行业机械化、自动化、智能化、信息化生产的领跑者。作为劲牌投资兴建的浓香原酒基地,六尺巷酒业前期规划总占地约950亩,总投资约19.8亿元。一期工程已于2014年9月投产,二期项目占地244亩,投资6.8亿元,年产品牌瓶装酒2万吨、基酒5000吨,已于2016年3月开工建设。


2018年,卓宝科技被选定为外墙分包单位,承接该项目二期(1#—5#陶坛酒库、倒班楼、动力车间)的外墙保温装饰一体板工程,先后完成外墙总面积约42000㎡。外墙具体材料面层为1.0mm的铝卷,保温芯材为A级防火30mm的岩棉,现场采用粘锚结合式安装方式。
近期,卓宝科技质量部负责人来到宜宾对该项目安全质量进行检测,在项目现场与甲方工程部总监金总共同对已完成的外墙工程进行了细致检查,检查内容包含外观效果、胶缝、平整度、有无裂缝、起鼓等。尽管历经夏日暴雨、烈日,冬日严寒等各种恶劣天气,卓宝铝板装饰节能一体化系统依旧亮丽如新、无任何空鼓、开裂、渗水等现象,甲方领导对我们优异产品质量及严谨的施工工序赞不绝口。